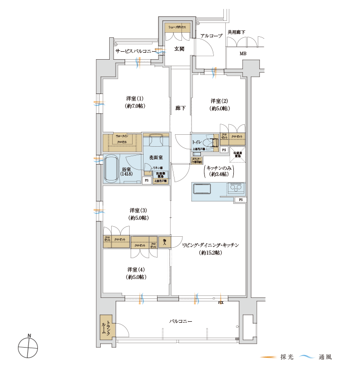
サンメゾン千種公園東 Atype 4LDK+WIC 83.29㎡
Atype 4LDK+WIC 83.29㎡

WIC=ウォークインクロゼット