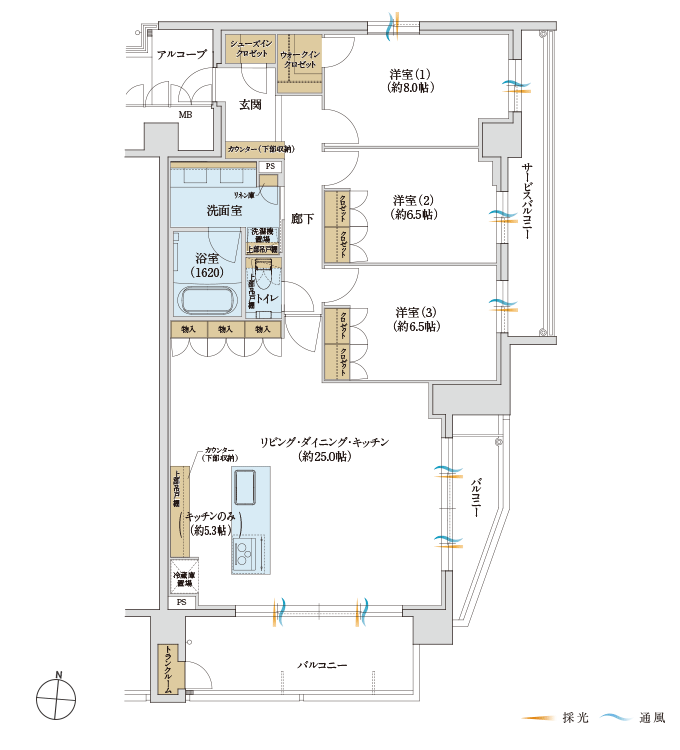
サンメゾン千種公園東 Etype 3LDK+WIC+SIC 102.29㎡

開放的で導線に優れたキッチン。浴室や洗面室も広々。

  • 明るい陽光が満喫できる三面採光の南東角住戸で、リビング・ダイニングの通風・採光性を向上。
  • アイランドキッチンをはじめ、1620サイズの浴室やダブルボウルの洗面室、ゆとりの収納を実現。
Etype 3LDK+WIC+SIC 102.29㎡

WIC=ウォークインクロゼット、SIC=シューズインクロゼット